エースカンパニー不動産TOP > メガロコープ平野1号棟
駅近、駅歩3分!マンション1F「イズミヤ」角住戸!室内水廻り設備新調を含む、全面リフォーム済み☆バス追炊機能・TVモニターホン完備☆全居室エアコン設置可能☆南向きバルコニー☆廊下に専用物置付き♪住戸前までゴミ回収あり!宅配ボックス完備です☆
【外観】【駅近!駅歩3分!マンション1F:イズミヤ♪】ローン返済目安:月々約49216円(頭金0円、変動金利0.875%、返済期間35年、ボーナス払い無しで試算しています)
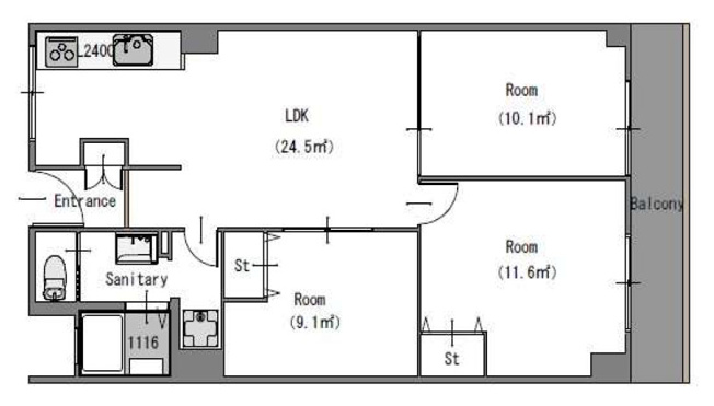
【間取り】【3LDK+南向きバルコニー☆】室内水廻り設備新調を含む、全面リフォーム済み☆バス追炊機能・TVモニターホン完備☆全居室エアコン設置可能☆廊下に専用物置付き♪住戸前までゴミ回収あります♪
※写真や図と実際の現状とが異なる場合は現状を優先させていただきます。
画像をクリックして視点を操作
| 所在階 | 価格 | 管理費 | 間取り | 専有面積 | 詳細 | 検討リスト |
|---|---|---|---|---|---|---|
| 10 | 1,440万円 | 8,780円 | 4K | 66.65㎡ | 詳細を見る | 追加する |











(※元利均等方式 金利5.00%まで ※返済年数5~50年まで入力できます)
(※ボーナスは年2回で計算しています。1000万円まで入力できます)
(※物件購入時、その他諸費用が発生する場合がございます)
| 所在地 | 大阪府大阪市平野区平野宮町1丁目 | ||
|---|---|---|---|
| 交通 | |||
| 間取り/詳細 | 3LDK | ||
| 専有面積/バルコニー面積 | 69.17㎡/7.69㎡ | ルーフバルコニー面積/テラス面積/専用庭面積 | -/-/- |
| 価格 | 1,780万円 | ||
| 管理費 | 8,780円 | ||
| 修繕積立金 | 13,280円 | 修繕積立基金 | - |
| 権利金 | - | 駐車場/月額料金 | 無/- |
| 土地の敷金/保証金 | -/- | 借地料/借地期間 | -/- |
| 土地権利 | 所有権 | 国土法届出要否 | 不要 |
| 用途地域 | 第一種住居 | 地勢 | - |
| 種別/構造 | 中古マンション/鉄筋コンクリート | 向き | 南 |
| 築年月(築年数) | 1970年 8月 (築55年) | ||
| 所在階/階建 | 6階/11階建 | 棟総戸数/販売戸数 | 321戸/1戸 |
| 管理組合有無 | 有 | 管理形態 | 管理会社に全部委託 |
| 管理員の勤務形態 | 日勤 | 管理会社 | 日本ハウズイング株式会社 |
| 取引態様 | 仲介 | 現況 | 空家 |
| 引渡し | 即時 | 建築確認番号 | - |
| 物件番号 | 100322490 | 取引条件の有効期限 | 2026年01月20日 |
| リフォーム |
2025年8月 キッチン 浴室 壁 床 全室 給湯器(追炊付)・洗面台・建具・玄関収納新調、ハウスクリーニング等。 |
||
| 設備条件 |
|
||
| 備考 |
【校区】 ・平野小学校-徒歩5分(約400m) ・平野北中学校-徒歩2分(約170m) 【主なお買い物施設】 ・「イズミヤ平野店」徒歩1分(約18m) ・「ココカラファインプラスイズミヤ平野店」徒歩1分(約18m) ・「デイリーヤマザキJR平野駅前店」徒歩3分(約210m) 【住宅ローン取次ぎお任せ下さい。ご相談無料。】 |
||
| 取扱会社 |
|
||
| QRコード |
このQRコードを読み取ることで、スマホでも物件情報を確認できます。 |
||
※地図上に表示される物件の位置は付近住所に所在することを表すものであり、実際の物件所在地とは異なる場合がございます。
メガロコープ平野1号棟に関するこだわり条件から探す