エースカンパニー不動産TOP > 八尾市山城町3丁目
両面道路☆敷地間口広々整形地☆2階建て♪エコなZEH仕様!太陽光発電システム5.28kw搭載☆耐震構造☆(耐震等級3相当)オール電化住宅☆【※太陽光発電システム搭載条件付物件:販売価格は「屋根貸しシステム(太陽光発電なし)」での価格です。こちらの場合は10年経過後無償譲渡になります。※太陽光発電付き(売電付き)の場合は物件価格に100万円プラスになります。】
【外観】【現地完成予定CGパース】【太陽光発電システム搭載☆耐震構造☆(耐震等級3相当)】ローン返済目安:月々約83926円(頭金0円、変動金利0.875%、返済期間40年、ボーナス払い無しで試算しています)
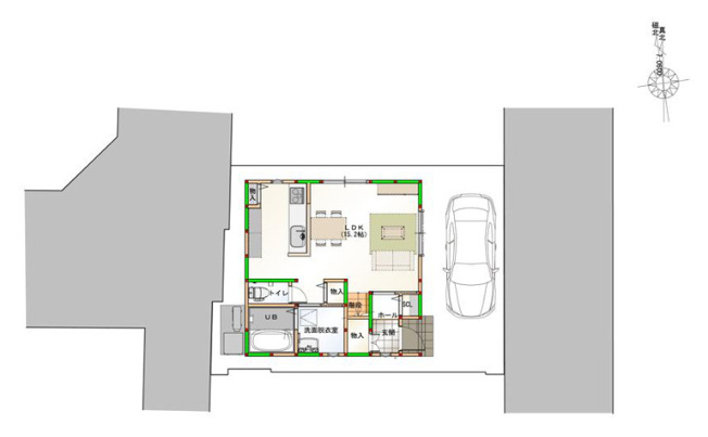
【間取り】2階建て♪【全洋室3LDK+駐車スペース】エコなZEH仕様!オール電化住宅☆
※写真や図と実際の現状とが異なる場合は現状を優先させていただきます。











(※元利均等方式 金利5.00%まで ※返済年数5~50年まで入力できます)
(※ボーナスは年2回で計算しています。1000万円まで入力できます)
(※物件購入時、その他諸費用が発生する場合がございます)
| 所在地 | 大阪府八尾市山城町3丁目 | ||
|---|---|---|---|
| 交通 | |||
| 間取り/詳細 |
3LDK/ LDK 15.2帖/洋室 6.2帖/洋室 5.1帖/洋室 5.1帖 |
建物面積(坪数) | 80.16㎡(24.24坪) |
| 価格 | 3,398万円 | ||
| 駐車場/月額料金 | 有(1台)/0円 | ||
| 土地の敷金/保証金 | -/- | 借地料/借地期間 | -/- |
| 土地権利 | 所有権 | 土地面積(坪数) | 96.39㎡(29.15坪) |
| 傾斜地部分面積 | - | 路地状敷地 | - |
| 私道負担面積/セットバック | 16.40㎡/- | 高圧線下面積 | - |
| 地目/地勢 | 宅地/平坦 | 接道状況 | 二方(東 私道 4.0m 間口 7.2m)(西 私道 4.0m) |
| 建ぺい率/容積率 | 60%/200% | 用途地域 | 第二種中高層住居専用 |
| 都市計画 | 市街化区域 | 種別/構造 | 新築一戸建/木造 |
| 階建 | 2階建 | 築年月(築年数) | 2026年 5月 (予定) |
| 総区画数/販売区画数 | 1区画/1区画 | 向き | 東 |
| 現況 | 未完成 | その他の法令上の制限 | 準防火地域 |
| 取引態様/引渡時期 | 仲介/2026年5月下旬 | 建築確認番号 | 第J25-20539号 |
| 物件番号 | 101118515 | 取引条件の有効期限 | 2026年03月01日 |
| 設備条件 |
|
||
| 備考 |
※同仕様モデルハウスのご内覧可能です♪ 【校区】 ・用和小学校-徒歩6分(約450m) ・八尾中学校-徒歩10分(約800m) 【主なお買い物施設】 ・「サンディ八尾山城店」徒歩5分(約400m) ・「コーナン八尾楠根店」徒歩4分(約260m) ・「ドラッグアカカベ萱振店」徒歩7分(約550m) ・「ローソン八尾楠根町店」徒歩3分(約180m) 【住宅ローン取次ぎお任せ下さい。ご相談無料。】 |
||
| 取扱会社 |
|
||
| QRコード |
このQRコードを読み取ることで、スマホでも物件情報を確認できます。 |
||
※地図上に表示される物件の位置は付近住所に所在することを表すものであり、実際の物件所在地とは異なる場合がございます。
八尾市山城町3丁目に関するこだわり条件から探す
八尾市の町名から探す