エースカンパニー不動産TOP > ユニ・アルス真田山南
駅近、最寄駅歩3分!2WAYアクセスもOK!最上階!角住戸!ペット飼育OK♪室内水廻り設備一新!全面リフォーム済み☆安心の新調設備保証付き☆食洗機・浴室乾燥機完備☆レースカーテン付き☆WICあり♪「真田山公園」徒歩2分圏内です♪
【外観】【駅近、最寄駅歩3分!2WAYアクセスOK♪平成10年築☆】ローン返済目安:月々約98548円(頭金0円、変動金利0.875%、返済期間40年、ボーナス払い無しで試算しています)
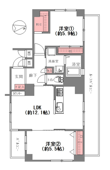
【間取り】【最上階!角住戸!ペット飼育OK♪室内水廻り設備一新!全面リフォーム済み☆安心の新調設備保証付き☆食洗機・浴室乾燥機完備☆レースカーテン付き☆WICあります♪】
※写真や図と実際の現状とが異なる場合は現状を優先させていただきます。
画像をクリックして視点を操作











(※元利均等方式 金利5.00%まで ※返済年数5~50年まで入力できます)
(※ボーナスは年2回で計算しています。1000万円まで入力できます)
(※物件購入時、その他諸費用が発生する場合がございます)
| 所在地 | 大阪府大阪市天王寺区味原町 | ||
|---|---|---|---|
| 交通 | |||
| 間取り/詳細 |
2LDK LDK 12.1帖/洋室 5.9帖/洋室 5.5帖 |
||
| 専有面積/バルコニー面積 | 57.56㎡/2.53㎡ | ルーフバルコニー面積/テラス面積/専用庭面積 | 14.69㎡/-/- |
| 価格 | 3,990万円 | ||
| 管理費 | 13,200円 | ||
| 修繕積立金 | 21,885円 | 修繕積立基金 | - |
| 権利金 | - | 駐車場/月額料金 | 無/- |
| 土地の敷金/保証金 | -/- | 借地料/借地期間 | -/- |
| 土地権利 | 所有権 | 国土法届出要否 | 不要 |
| 用途地域 | 第二種住居/商業 | 地勢 | - |
| 種別/構造 | 中古マンション/鉄筋コンクリート | 向き | 北 |
| 築年月(築年数) | 1998年 2月 (築27年) | ||
| 所在階/階建 | 8階/8階建 | 棟総戸数/販売戸数 | 21戸/1戸 |
| 管理組合有無 | 有 | 管理形態 | 管理会社に全部委託 |
| 管理員の勤務形態 | 日勤 | 管理会社 | グローバルコミュニティ株式会社 |
| 取引態様 | 仲介 | 現況 | 空家 |
| 引渡し | 即時 | 建築確認番号 | - |
| 物件番号 | 78102949 | 取引条件の有効期限 | 2026年01月26日 |
| リフォーム |
2025年10月 キッチン 浴室 トイレ 壁 全室 給湯器・洗面台新調、ハウスクリーニング等。 |
||
| 設備条件 |
|
||
| 備考 |
※お伝え事項あり。 ※ペット飼育可(条件付) ※※設置されている家具・小物・照明はディスプレイ用です。家具付きの販売ではございません。 【校区】 ・味原小学校-徒歩3分(約200m) ・高津中学校-徒歩10分(約800m) 【周辺環境】 ・「真田山公園」徒歩2分(約120m) ・「デイリーカナートイズミヤ玉造店」徒歩7分(約500m) ・「スギドラッグ鶴橋駅西店」徒歩4分(約260m) ・「ファミリーマート鶴橋駅前店」徒歩3分(約210m) 【住宅ローン取次ぎお任せ下さい。ご相談無料。】 |
||
| 取扱会社 |
|
||
| QRコード |
このQRコードを読み取ることで、スマホでも物件情報を確認できます。 |
||
※地図上に表示される物件の位置は付近住所に所在することを表すものであり、実際の物件所在地とは異なる場合がございます。
ユニ・アルス真田山南に関するこだわり条件から探す
大阪市天王寺区の町名から探す