エースカンパニー不動産TOP > 八尾市水越3丁目
【新築後未入居物件☆】南向き☆現況前面に建物が無く、陽当り良好☆耐震性・耐風性が高い「2×4工法」で建てた家☆全洋室、収納&設備充実♪宅配ボックス・玄関電子キーシステム・食洗機・浴室乾燥機完備等☆小中学校、徒歩4分圏内です♪
【外観】【新築後未入居物件☆】南向き☆耐震性・耐風性が高い「2×4工法」で建てた家☆ローン返済目安:月々約68571円(頭金0円、変動金利0.875%、返済期間35年、ボーナス払い無しで試算しています)
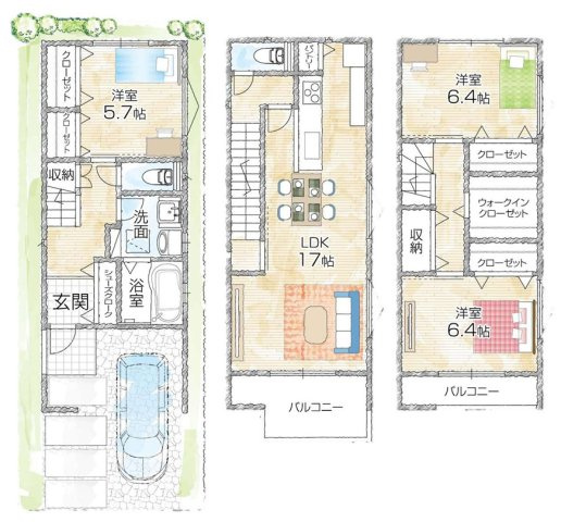
【間取り】【新築後未入居物件☆】「全洋室3LDK+駐車スペース」収納&設備充実♪宅配ボックス・玄関電子キーシステム・食洗機・浴室乾燥機完備等☆
※写真や図と実際の現状とが異なる場合は現状を優先させていただきます。
画像をクリックして視点を操作











(※元利均等方式 金利5.00%まで ※返済年数5~50年まで入力できます)
(※ボーナスは年2回で計算しています。1000万円まで入力できます)
(※物件購入時、その他諸費用が発生する場合がございます)
| 所在地 | 大阪府八尾市水越3丁目 | ||
|---|---|---|---|
| 交通 | |||
| 間取り/詳細 |
3LDK/ LDK 17.0帖/洋室 6.4帖/洋室 6.4帖/洋室 5.7帖 |
建物面積(坪数) | 101.14㎡(30.59坪) |
| 価格 | 2,480万円 | ||
| 駐車場/月額料金 | 有(1台)/0円 | ||
| 土地の敷金/保証金 | -/- | 借地料/借地期間 | -/- |
| 土地権利 | 所有権 | 土地面積(坪数) | 65.87㎡(19.92坪) |
| 傾斜地部分面積 | - | 路地状敷地 | - |
| 私道負担面積/セットバック | -/無 | 高圧線下面積 | - |
| 地目/地勢 | 宅地/平坦 | 接道状況 | 一方(南 公道 4.8m 間口 4.8m) |
| 建ぺい率/容積率 | 60%/200% | 用途地域 | - |
| 都市計画 | 市街化調整区域 | 種別/構造 | 中古一戸建/木造 |
| 階建 | 3階建 | 築年月(築年数) | 2023年 10月 (築2年) |
| 総区画数/販売区画数 | 1区画/1区画 | 向き | 南 |
| 現況 | 完成済み | その他の法令上の制限 | - |
| 取引態様/引渡時期 | 仲介/即時 | 建築確認番号 | - |
| 物件番号 | 98129805 | 取引条件の有効期限 | 2025年12月01日 |
| 設備条件 |
|
||
| 備考 |
【校区】高安小中学校-徒歩4分(約290m) 【主なお買い物施設】 ・「万代楽音寺店」徒歩17分(約1300m) ・「ココカラファイン八尾水越店」徒歩7分(約500m) ・「セブンイレブン八尾水越東店」徒歩8分(約640m) 【住宅ローン取次ぎお任せ下さい。ご相談無料。】 |
||
| 取扱会社 |
|
||
| QRコード |
このQRコードを読み取ることで、スマホでも物件情報を確認できます。 |
||
※地図上に表示される物件の位置は付近住所に所在することを表すものであり、実際の物件所在地とは異なる場合がございます。
八尾市水越3丁目に関するこだわり条件から探す
八尾市の町名から探す