エースカンパニー不動産TOP > 東大阪市菱屋西5丁目 【1号棟/全2棟】
【1号棟/全2棟】駐車2台可能!全洋室4LDK♪LDK広々19.5帖!食洗機・浴室乾燥機完備☆SIC&WICあり♪地盤20年保証、建物10年瑕疵保険付き☆フラット35S利用可能☆スーパー・ドラッグストア・コンビニ徒歩5分圏内♪最寄駅徒歩5分、2WAYアクセスも可能です!
【外観】【1号棟】駐車2台可能!最寄駅徒歩5分、2WAYアクセスも可能!ローン返済目安:月々約110543円(頭金0円、変動金利0.875%、返済期間35年、ボーナス払い無しで試算しています)
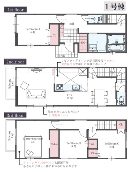
【間取り】【1号棟】全洋室4LDK♪LDK広々19.5帖!食洗機・浴室乾燥機完備☆SIC&WICあり♪地盤20年保証、建物10年瑕疵保険付き☆フラット35S利用可能です☆
※写真や図と実際の現状とが異なる場合は現状を優先させていただきます。
画像をクリックして視点を操作











(※元利均等方式 金利5.00%まで ※返済年数5~50年まで入力できます)
(※ボーナスは年2回で計算しています。1000万円まで入力できます)
(※物件購入時、その他諸費用が発生する場合がございます)
| 所在地 | 大阪府東大阪市菱屋西5丁目 | ||
|---|---|---|---|
| 交通 | |||
| 間取り/詳細 |
4LDK/ LDK 19.5帖/洋室 7.5帖/洋室 6.4帖/洋室 5.0帖/洋室 4.5帖 |
建物面積(坪数) | 109.82㎡(33.22坪) |
| 価格 | 3,998万円 | ||
| 駐車場/月額料金 | 有(2台)/0円 ※並列駐車2台可能(普通車1台+軽自動車1台)車種により異なります。 | ||
| 土地の敷金/保証金 | -/- | 借地料/借地期間 | -/- |
| 土地権利 | 所有権 | 土地面積(坪数) | 83.75㎡(25.33坪) |
| 傾斜地部分面積 | - | 路地状敷地 | - |
| 私道負担面積/セットバック | 10.13㎡/無 | 高圧線下面積 | - |
| 地目/地勢 | 宅地/平坦 | 接道状況 | 一方(西 公道 4.0m 間口 6.5m) |
| 建ぺい率/容積率 | 60%/160% | 用途地域 | 第一種住居 |
| 都市計画 | 市街化区域 | 種別/構造 | 新築一戸建/木造 |
| 階建 | 3階建 | 築年月(築年数) | 2025年 7月 (新築) |
| 総区画数/販売区画数 | 2区画/2区画 | 向き | 西 |
| 現況 | 完成済み | その他の法令上の制限 | 準防火地域 |
| 取引態様/引渡時期 | 仲介/即時 | 建築確認番号 | - |
| 物件番号 | 98568298 | 取引条件の有効期限 | 2025年12月01日 |
| 設備条件 |
|
||
| 備考 |
【校区】 ・高井田東小学校-徒歩12分(約900m) ・長栄中学校-徒歩12分(約950m) 【主なお買い物施設】 ・「スーパーことぶき小阪店」徒歩5分(約350m) ・「イオンタウン小阪」徒歩6分(約450m) ・「スギドラッグ小阪駅北店」徒歩4分(約300m) ・「ファミリーマート大阪商大西店」徒歩4分(約290m) 【住宅ローン取次ぎお任せ下さい。ご相談無料。】 |
||
| 取扱会社 |
|
||
| QRコード |
このQRコードを読み取ることで、スマホでも物件情報を確認できます。 |
||
※地図上に表示される物件の位置は付近住所に所在することを表すものであり、実際の物件所在地とは異なる場合がございます。
東大阪市の町名から探す