エースカンパニー不動産TOP > 生野区田島3丁目 【2号棟/全4区画】
【2号棟/全4区画】2号棟は角地☆2階建て、駐車2台可能♪安心の性能表示取得物件☆5分野7項目で一番良い等級を取得☆(耐震等級・耐風等級・一次エネルギー消費量等級…等)制振装置も装備☆防犯カメラ・TVモニターホン・人感センサー付玄関灯・浴室乾燥機完備です☆
【外観】【着工してます!現地2025年11月14日現在☆】
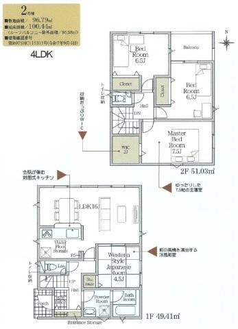
【間取り】【2号棟:4LDK】2号棟は角地☆2階建て、駐車2台可能♪価格4080万円:ローン返済目安:月々約112811円(頭金0円、変動金利0.875%、返済期間35年、ボーナス払い無しで試算しています)
※写真や図と実際の現状とが異なる場合は現状を優先させていただきます。











(※元利均等方式 金利5.00%まで ※返済年数5~50年まで入力できます)
(※ボーナスは年2回で計算しています。1000万円まで入力できます)
(※物件購入時、その他諸費用が発生する場合がございます)
| 所在地 | 大阪府大阪市生野区田島3丁目 | ||
|---|---|---|---|
| 交通 | |||
| 間取り/詳細 |
4LDK/ LDK 16.0帖/和室 4.5帖/洋室 6.5帖/洋室 6.5帖/洋室 7.5帖 |
建物面積(坪数) | 100.44㎡(30.38坪) |
| 価格 | 4,080万円 | ||
| 駐車場/月額料金 | 有(2台)/0円 | ||
| 土地の敷金/保証金 | -/- | 借地料/借地期間 | -/- |
| 土地権利 | 所有権 | 土地面積(坪数) | 96.79㎡(29.27坪) |
| 傾斜地部分面積 | - | 路地状敷地 | - |
| 私道負担面積/セットバック | -/無 | 高圧線下面積 | - |
| 地目/地勢 | 宅地/平坦 | 接道状況 | 角地(北 公道 5.4m)(西 公道 5.4m) |
| 建ぺい率/容積率 | 80%/300% | 用途地域 | 近隣商業 |
| 都市計画 | 市街化区域 | 種別/構造 | 新築一戸建/木造 |
| 階建 | 2階建 | 築年月(築年数) | 2026年 1月 (予定) |
| 総区画数/販売区画数 | 4区画/4区画 | 向き | 北 |
| 現況 | 未完成 | その他の法令上の制限 | 準防火地域 |
| 取引態様/引渡時期 | 仲介/2026年1月下旬 | 建築確認番号 | 第R07SHC115311号 |
| 物件番号 | 98596026 | 取引条件の有効期限 | 2025年12月01日 |
| 設備条件 |
|
||
| 備考 |
【校区】 ・田島南小学校-徒歩9分(約700m) ・田島中学校-徒歩9分(約700m) 【主なお買い物施設】 ・「スーパー玉出大池店」徒歩4分(約280m) ・「キリン堂生野林寺店」徒歩9分(約650m) ・「ローソン生野舎利寺店」徒歩6分(約480m) 【住宅ローン取次ぎお任せ下さい。ご相談無料。】 |
||
| 取扱会社 |
|
||
| QRコード |
このQRコードを読み取ることで、スマホでも物件情報を確認できます。 |
||
※地図上に表示される物件の位置は付近住所に所在することを表すものであり、実際の物件所在地とは異なる場合がございます。
生野区田島3丁目 【2号棟/全4区画】に関するこだわり条件から探す